areal attiger

Programm

Wohnungen, Gewerbe

Standort

Rapperswilerstrasse, Wetzikon

Planung

einsarchitekten

Totalunternehmer

einsgesamtleistungen

Auftraggeber

Institutioneller Investor

Fertigstellung

2024

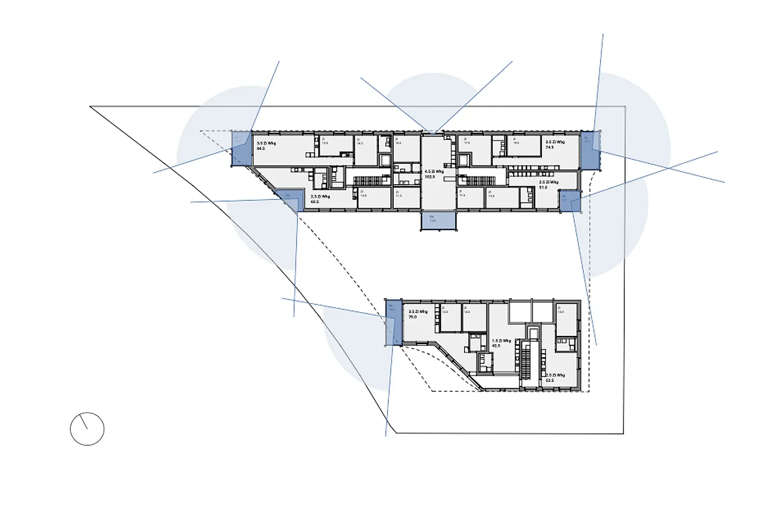
Das Projekt zeichnet sich durch eine besondere Lage am Siedlungsrand und doch sehr nahe beim Bahnhof aus, umgeben von guter Infrastruktur. Prominent und exponiert situiert, sollen die zwei geplanten Neubauten anziehend und interessant wirken. Das Projekt soll keine einzelne grosse und mächtige Figur aufweisen, sondern feingliedrig und einladend wirken und sich mit dem Umfeld verbinden. Die städtebauliche und architektonische Idee beruht auf dem Ansatz, ein kleines Stück Stadt zu schaffen, ein Ruhepol, bezugnehmend auf die angrenzenden heterogenen Nutzungen und Anlagen.
 Zwei unterschiedlich hohe Gebäude mit Gassen und öffentlichen Durchgängen schaffen einen besonderen und attraktiven Ort für Kleingewerbe (Läden, Gastronomie, Ateliers etc.) und Wohnungen. Die feingliedrige Konzeption des Projekts verbindet den Innenhof mit dem interessanten und abwechslungsreichen Umfeld. Die privaten Aussenräume profitieren vom ruhigen Hof, wobei die Sichtbezüge in die Weite die Qualität der Wohnungen unterstreichen.